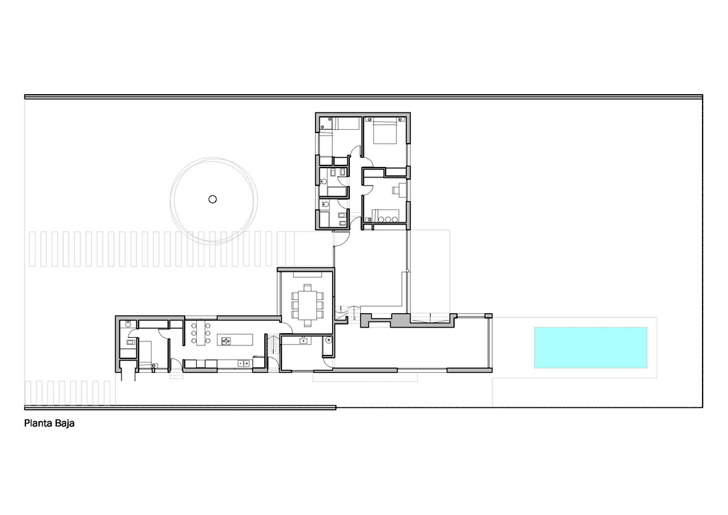
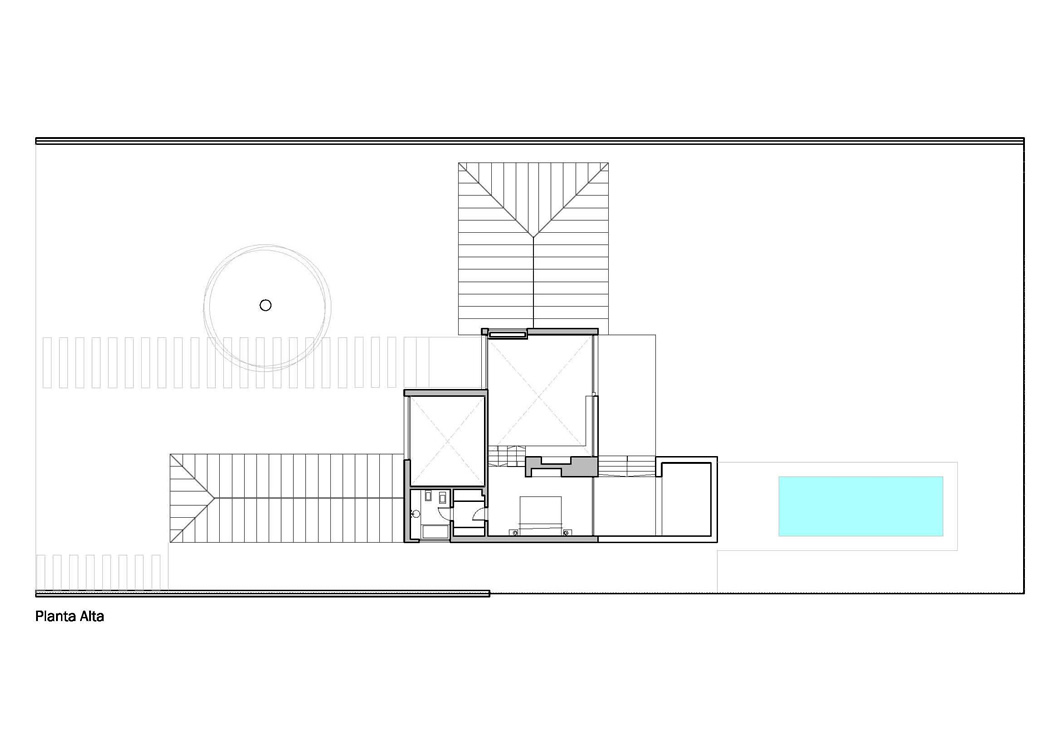
Casa GP / 2003
Proyecto, dirección y construcción
Raquel Peralta Ramos, Laura Pereyra, Sebastián Pereyra
Club Argentino de Golf, Buenos Aires
Superficie 270 m2

Laura Pereyra Arq © 2015