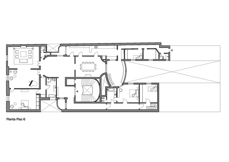
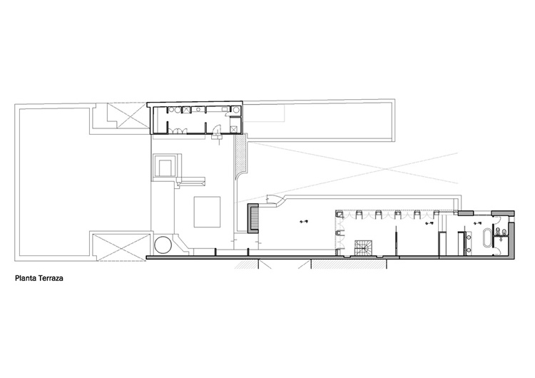
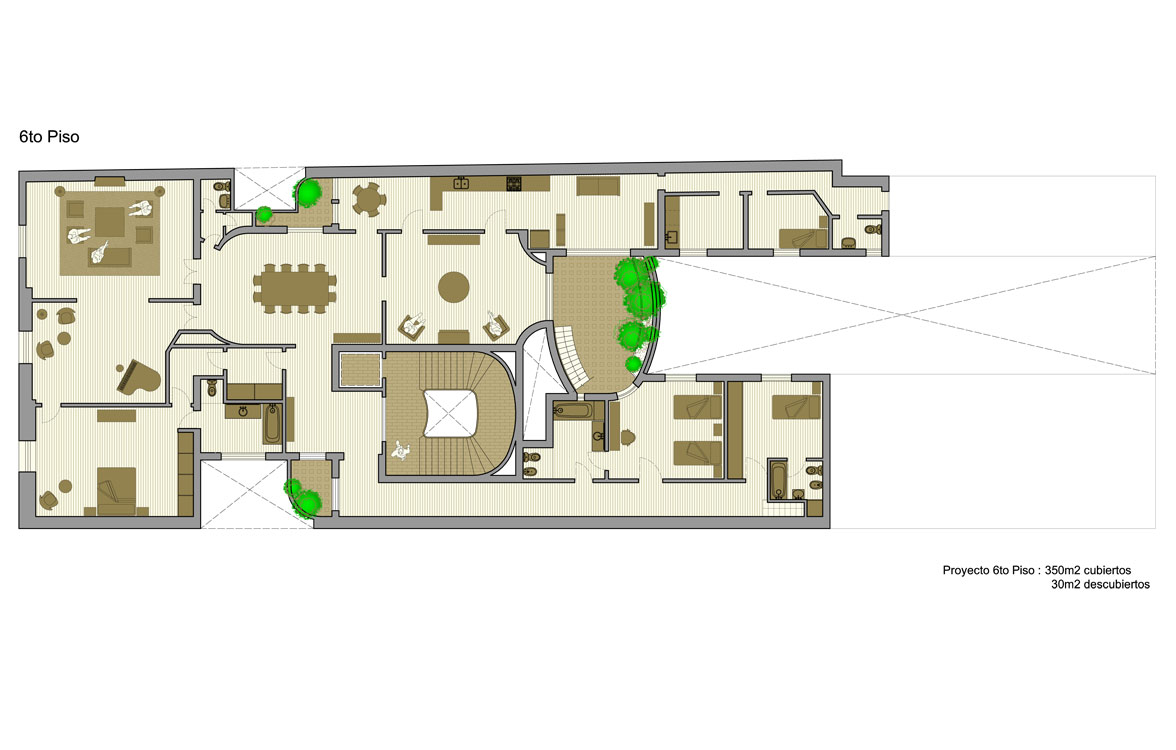
Casa MB / 2010
Proyecto y dirección
Maria Benitez, Laura Pereyra, Ezequiel Montes de Oca
Ciudad Autónoma de Buenos Aires
Superficie 600 m2

Laura Pereyra Arq © 2015