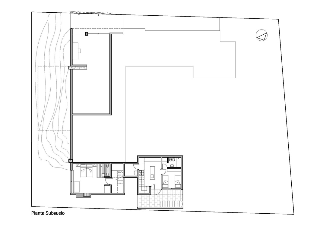
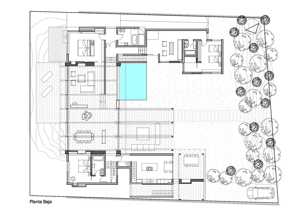
Casa JI 1 / 2005
Proyecto y dirección
Maria Benitez, Raquel Peralta Ramos, Laura Pereyra, Ezequiel Montes de Oca
Iluminación: Arturo Peruzzotti
Paisajismo: Alejandra De Dominicis
Jose Ignacio, Uruguay
Superficie 590 m2

Laura Pereyra Arq © 2015